


Am Oberwiesenfeld
Typ: Seniorenpflegeheim - Entwurfs- und Bauantragsplanung
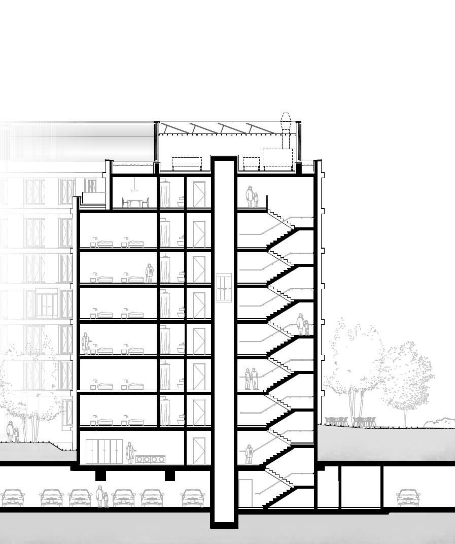
Location: Am Oberwiesenfeld, München
Fläche: 14.400 m²
Datum: 2022
Architektur: Foerster + Koestler Architekten, Berlin
Visualisierungen: Alexander Wesenberg
In Kooperation mit Ingenhoven architects
Nahe dem Münchner Olympiagelände entsteht ein multifunktionales Bauvorhaben – ein Ensemble aus Wohn-, Gewerbe-, Büro-, Pflege-, Kindergarten- und sozialen Einrichtungen. Als Teil von "Förster + Köstler Architekten" haben wir maßgeblich an der Gestaltung des Seniorenpflegeheims mitgewirkt. In enger Zusammenarbeit mit "Ingenhoven Architects", den Hauptplanern des Areals, entstand ein Projekt, das modernsten und nachhaltigen Bauprinzipien folgt. Solarenergie, ökologische Fassaden und bewusst gewählte Baustoffe stehen im Fokus. Dachgärten und Gemeinschaftsgrünflächen schaffen eine grüne Oase in der Mitte des Ensembles und setzen neue Maßstäbe für zeitgemäße Stadtentwicklung.
Close to the Munich Olympic Park, a diverse construction project is taking shape – an ensemble of residential, commercial, office, elderly care facility, kindergarten, and social facilities. As part of "Förster + Köstler Architects," we have played a significant role in designing the elderly care facility. In close collaboration with "Ingenhoven Architects," the main planners of the area, a project has emerged that adheres to the latest sustainable construction principles. Solar energy, eco-friendly facades, and consciously selected building materials take center stage. Rooftop gardens and communal green spaces create a verdant oasis within the ensemble, setting new standards for contemporary urban development.