
Rengershausen
Typ: Scheunenausbau - Entwurfs- und Bauantrgasplanung
Location: Baunatal, Kassel
Fläche: 540 m²
Datum: 2023
Architektur: Alexander Wesenberg für Foerster +Koestler Arch.
Visualizations: Alexander Wesenberg
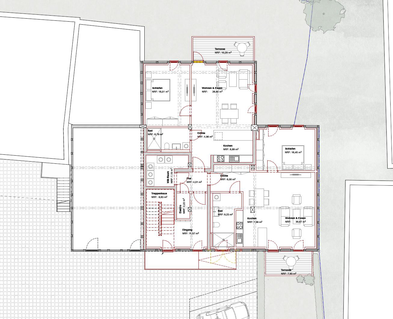
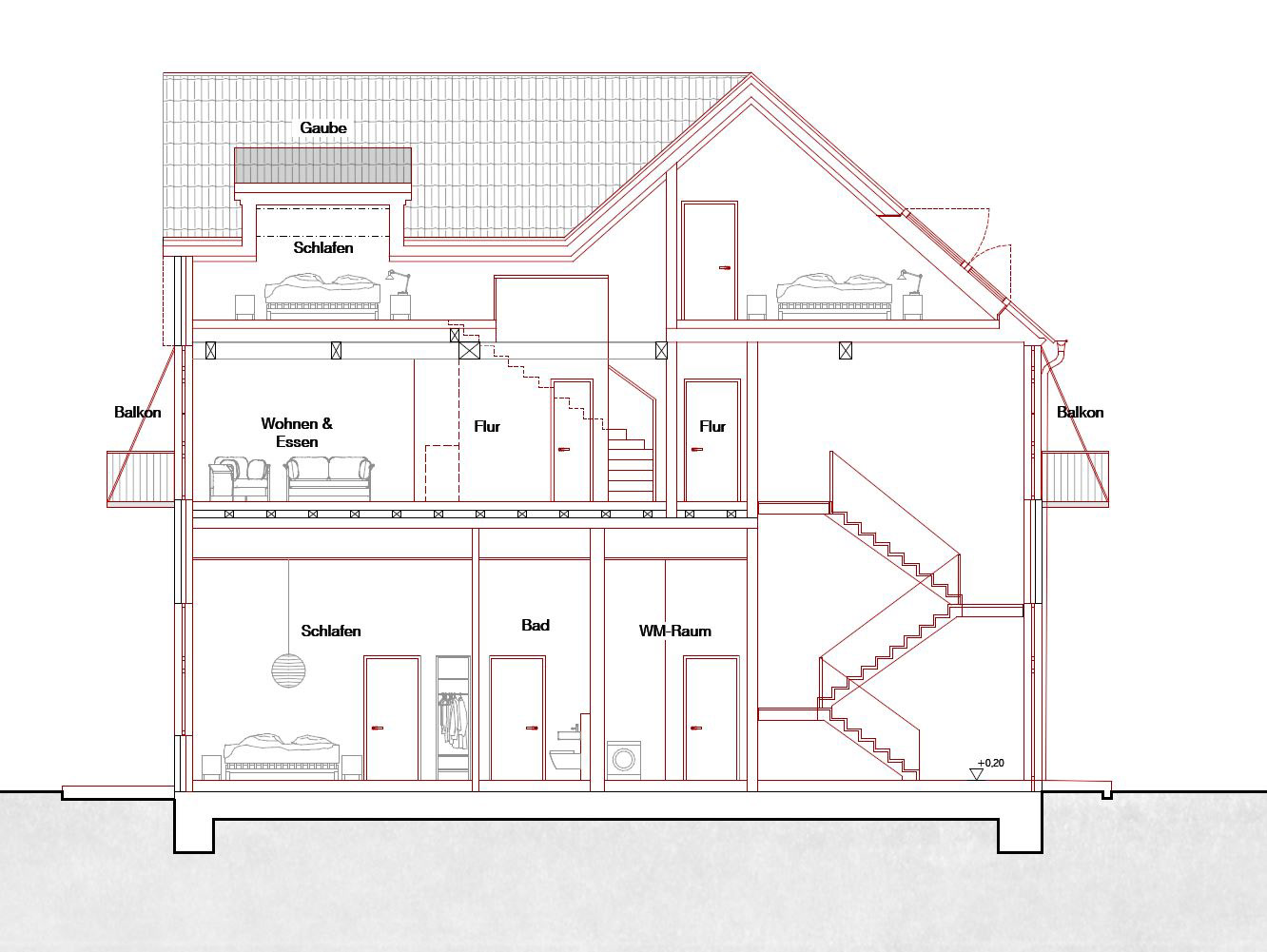
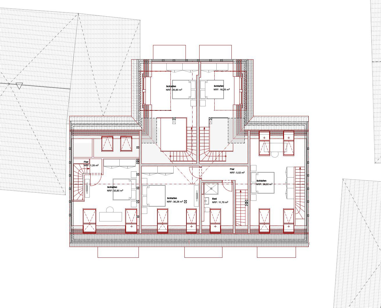
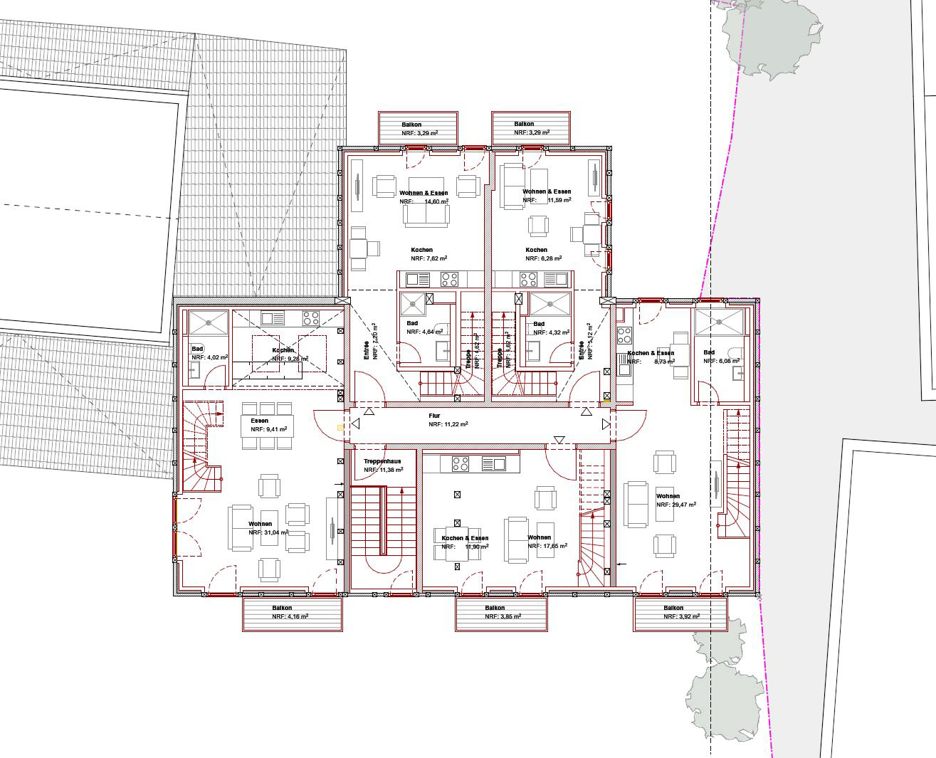
Der vorgeschlagene architektonische Entwurf am Rande von Kassel konzentriert sich auf die Umnutzung eines denkmalgeschützten Scheunengebäudes im historischen Innenstadtensemble im Baunatal. Die geplante Transformation beinhaltet den Ausbau des hohen Dachraums in drei Etagen, um insgesamt sieben Wohnungen zu schaffen. Dabei werden die ersten beiden Obergeschosse als Maisonette-Wohnungen gestaltet, wobei die Schlafzimmer in den Dachräumen platziert werden. Die Struktur und Fassadenaufteilung des originalen Fachwerks bleiben bei der Fassadengestaltung erhalten, um den denkmalpflegerischen Anforderungen gerecht zu werden. Im Innenraum werden die Holzbalkenstrukturen bewahrt und hervorgehoben, um die historische Atmosphäre des Gebäudes erlebbar zu machen. Die Balance zwischen historischer Authentizität und modernen Wohnbedürfnissen steht im Mittelpunkt dieses Vorhabens.
The proposed architectural design focuses on the repurposing of a listed barn building within the historical city center ensemble near Kassel. The planned transformation involves converting the lofty roof space into three levels to accommodate a total of seven apartments. The first and second upper floors are envisioned as maisonette apartments, with bedrooms situated in the attic spaces. The structure and facade division of the original timber framework will be preserved in the facade design to meet the requirements of heritage conservation. Inside, the wooden beam structures will be retained and accentuated to evoke the historical ambiance of the building. Striking a balance between historical authenticity and contemporary living needs is at the heart of this endeavor.